Structural engineering design for tensile roofing structure by ShadeCo
Tensile structure framework analysis and engineering design service
Steel frame engineering for tensile fabric roofing project
Structural load analysis for tensile canopy and roofing system
ShadeCo structural engineering service for fabric roof and space frame structure

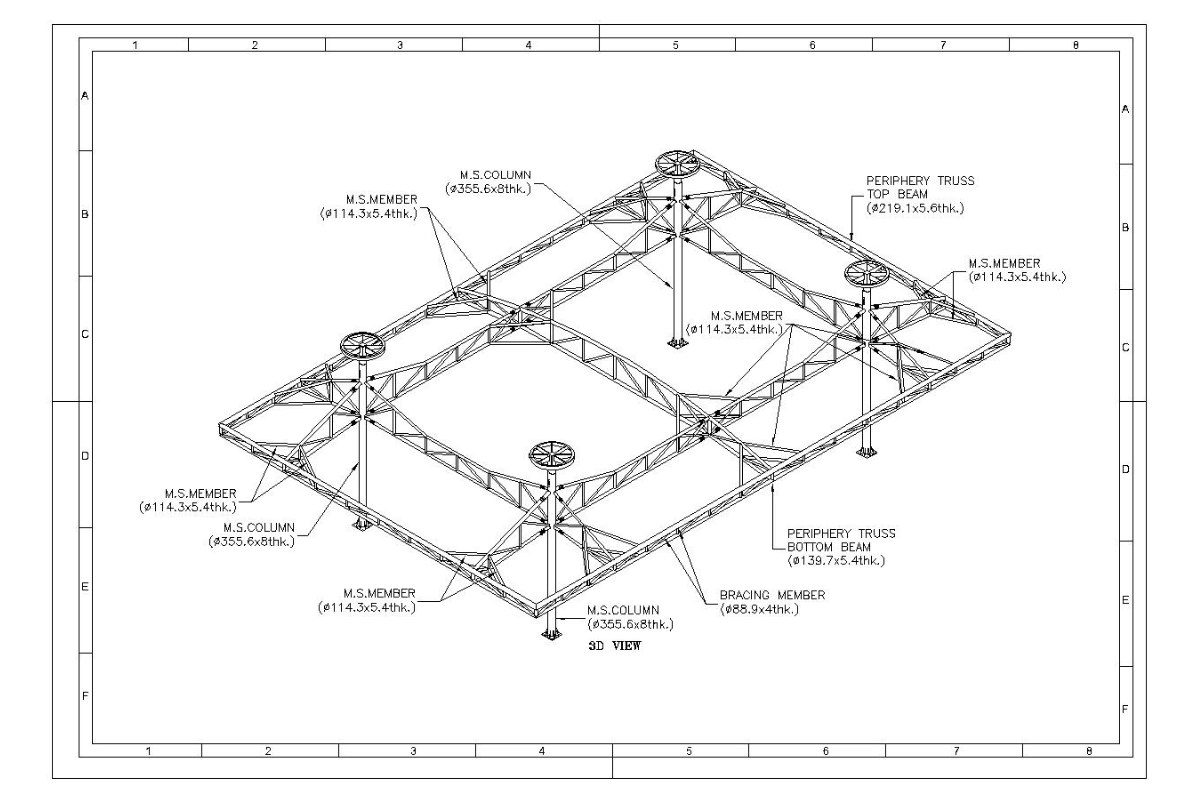
ShadeCo provides structural engineering services for tensile fabric structures, space frame structures, prefabricated buildings, steel roofing systems, canopies, and architectural shade projects. Our engineering team supports projects from concept to execution with practical structural design, load analysis, fabrication coordination, and installation-ready detailing.

Every successful tensile or roofing project needs a strong structural foundation. We focus on safety, stability, material efficiency, wind performance, drainage, connection detailing, and site feasibility so the final structure is not only visually appealing but also reliable, buildable, and long-lasting.

Structural Engineering for Tensile and Roofing Projects

Our structural engineering services are designed for projects where accuracy and execution clarity matter. We work on tensile fabric roofs, car parking shades, stadium canopies, walkway covers, atrium roofs, amphitheater structures, prefabricated buildings, and other custom shade systems.

  • Structural Analysis: Load calculation, wind consideration, support planning, and overall stability checks.
  • Steel Frame Design: Practical frame layouts for tensile fabric, roofing, canopy, and shade structure projects.
  • Form-Finding Support: Shape and membrane behavior planning for tensile fabric structures.
  • Connection Detailing: Engineering of critical junctions, base plates, anchors, cables, and support points.
  • Workshop Drawings: Clear fabrication drawings for manufacturing, assembly, and installation teams.

Engineering Support for Diverse Project Types

ShadeCo supports architects, developers, contractors, institutions, industrial clients, and property owners with structural engineering solutions that match real project conditions. Our goal is to make the design safe, efficient, and easy to execute on site.

  • Tensile Fabric Structures: Engineering support for membrane roofs, canopies, shade sails, and fabric structures.
  • Space Frame Structures: Structural planning for large-span roofing and architectural covers.
  • Prefabricated Buildings: Frame design and detailing for efficient prefabricated construction.
  • Car Parking and Walkway Covers: Practical structural design for repeated bay layouts and long pedestrian paths.
  • Stadium and Auditorium Roofing: Long-span engineering for spectator shade and large public spaces.

Advanced Tools for Accurate Structural Design

We use professional engineering and drafting tools to develop reliable structural designs and coordination drawings. Software-supported analysis helps us study loads, frame behavior, member sizes, junctions, and installation requirements with better accuracy.

  • AutoCAD: Detailed 2D drawings, plans, elevations, sections, and fabrication coordination.
  • Revit: BIM-based coordination where building information modeling is required.
  • STAAD Pro: Structural analysis and design support for steel and roofing frameworks.
  • Form-Finding Tools: Membrane shape study, fabric tension planning, and support geometry coordination.
  • Simulation Support: Review of structural behavior, wind exposure, and construction sequence where required.

Benefits of Our Structural Engineering Services

ShadeCo combines design understanding with site practicality. Our structural engineering process helps improve safety, reduce rework, support fabrication, and keep the project aligned with cost, quality, and timeline expectations.

01

Safe Structural Design

We design structures with load, wind, support, and environmental conditions in mind.

02

Efficient Material Planning

Our engineering approach helps balance strength, cost, material use, and practical fabrication.

03

Clear Workshop Drawings

Detailed drawings support smoother manufacturing, assembly, and on-site installation.

04

Execution Support

We consider foundations, anchoring, drainage, access, and installation feasibility from the design stage.

Structural Engineering Workflow

Our workflow is structured to connect design, engineering, fabrication, and installation. This helps the project move forward with fewer surprises during execution.

  • Project Review: We study site details, drawings, coverage area, function, and client requirements.
  • Design Coordination: We coordinate architectural form, support locations, fabric geometry, and frame layout.
  • Load Analysis: We analyze dead load, live load, wind load, and relevant structural forces.
  • Frame and Connection Design: We plan structural members, base plates, anchors, cables, and junctions.
  • Drawings and Execution Support: We prepare drawings for fabrication, approval, and installation coordination.

Reliable Structural Support by ShadeCo

Planning a tensile fabric structure, space frame, roofing system, canopy, prefabricated building, or shade structure? ShadeCo provides structural engineering support that helps turn your design into a safe, efficient, and execution-ready project.

faq

Frequently Asked Questions - Structural Engineering

Our structural engineering service includes structural analysis, frame design, load calculation, support planning, connection detailing, workshop drawings, and execution coordination for tensile structures and roofing projects.

Yes. ShadeCo provides structural engineering support for tensile fabric structures, including form coordination, frame design, support placement, membrane behavior, and fabrication detailing.

We use professional tools such as AutoCAD, Revit, STAAD Pro, form-finding tools, and simulation workflows depending on project complexity and design requirements.

Yes. Proper structural engineering helps identify load, support, drainage, foundation, connection, and installation issues early, reducing rework and improving site execution.

You can share your site drawings, project dimensions, photos, design concept, load requirements, and structure type with ShadeCo. Our team will review the inputs and guide you with the next engineering steps.

Call Now WhatsApp Get Quote